"STADTBAUSTEIN BRAUHAUSSTRASSE" Wettbewerbspreisträger
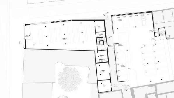
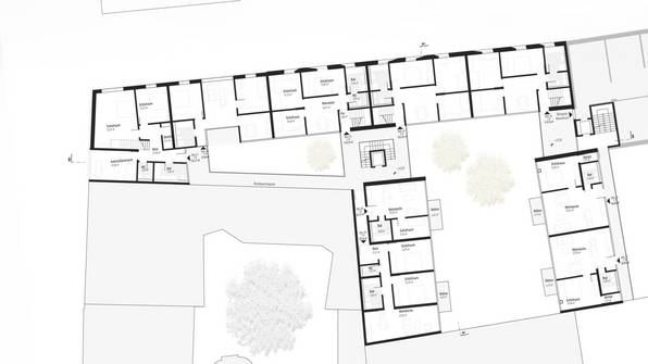
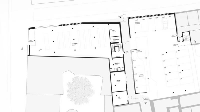
Verknüpfung von städtischem Wohnen, Arbeiten und sozialer Infrastruktur als nachhaltigesund lebendiges Stadtquartier und als ein neuer Stadtbaustein für Halle. Halböffentliche begrünte Höfe mit neuen Durchwegungen und städtebauliche Anbindungenwerden angelegt und als Kommunikationsplattformen mit städtischen Gärteninszeniert. Eine Schließung der Quartiersbebauung erfolgt in Form einer Blockrandbebauung, die die vorhandene Höhenstruktur aufnimmt. Der Innenhof des Quartiers wird über neue Brückenbauten in mehrere Höfe gegliedert. Der Kopfbau an der Quartiersecke Rannische Straße-Große Brauhausstraße wird miteiner Fassade, die eine ruhige Textur als typografische Gestaltung in Bezug auf die ehemalige Zeitung „Hallesches Tageblatt“ hat, gegliedert. Eigenständig und zurückhaltend schließt er eine Lücke Halles. Die Fassadengestaltung lässt den benachbarten, hochwertigen Renaissancebau unangetastet und „hinterlegt“ ihn. Die Bebauung an der Großen Brauhausstraße schließt den Blockrand mit einerschlichten Putzfassade, die die benachbarten Denkmäler in ihrer Erscheinung in Duktus und Proportion aufnimmt, ohne sie in ihrer Bedeutung zu schmälern. Vielmehrschaffen die Denkmäler eine Identität für den neuen Stadtbaustein und sind ein wichtiges Bindeglied. Arbeitsgemeinschaft mit Großmann Architektur, Architekt M. Peitz und Därr Landschaftsarchitekten








