"ADAPTIONEN" Stadtvilla- Umbau
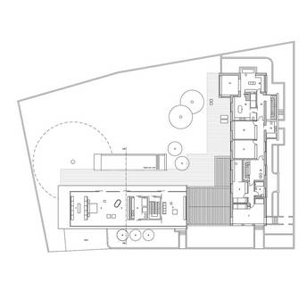
Eine unter Denkmalschutz stehende Villa und ihre Außenanlagen sollen in ihrer Typologie unterstrichen und neu interpretiert werden. Umbau, Modernisierung, Erweiterung und Umgestaltung erfolgt durch drei „Applikationen“ - architektonische Elemente, die neue ablesbare Gestalt- und Funktionsschichten schaffen. Alt und Neu wird dabei klar voneinander getrennt und als Kontrast gegenüber gestellt. Mit einer zweiten Erschließungsstruktur bekommt das Gebäude eine klare Orientierung und einen neuen Gestaltungsrahmen. Eine spätere Teilung der Wohneinheiten ist möglich und das Leben um und mit dem Garten wird ein zentrales Thema. | Entwurf | 2010


