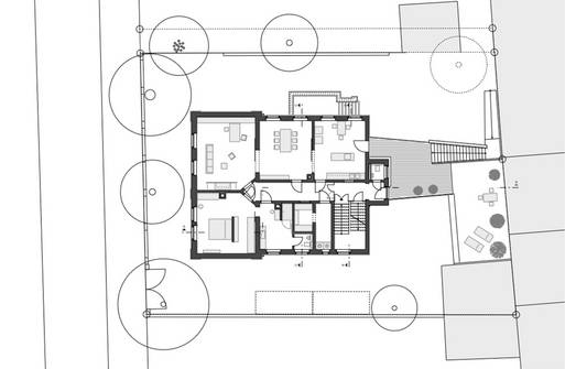
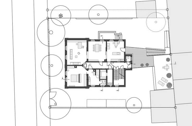
LAFONTAINSTRASSE 18 Mehrfamilienhaus - Sanierung + Umbau
Das denkmalgeschützte Mehrfamilienhaus aus dem Baujahr 1875 liegt in einem der ältesten Villenviertel in Halle. Im Zuge der Sanierung des Einzeldenkmals ist ein für die Funktion maßgeblicher Umbau geplant. Neben dem Ausbau des Dachraumes wird ein Nebengebäude zu einem großzügigen Dachgarten mit Hobbyraum umfunktioniert und mit dem Hauptgebäude im Obergeschoss verbunden. Als neues architektonisches Element liegt zwischen den Baukörpern eine große Terrasse, die von beiden Seiten zugänglich ist, viele Nutzungsmöglichkeiten bietet und eine neue Gestaltdimension schafft. | Entwurf + Werkplanung + Ausschreibung + Bauleitung | 2012










