"PARCELLE" Wohnhaus- Gestüt
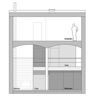
Bei der Innenraumplanung eines Reihenhauses, das aus einem denkmalgeschützten Reitstallgebäude parzelliert ist, galt es individuelle Wünsche zu realisieren und die Nahtstelle zwischen Bauherr und Bauträger zu vereinen. In Zusammenarbeit mit verschiedenen Künstlern entstand ein Wechselspiel aus einer strengen, sehr reduzierten Grundkonzeption und den Möbeln und Bildern. | Entwurf + Ausführung | 2011




