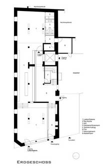
"STADTMOLEKÜL" Wohnprojekt - Sanierung + Umbau
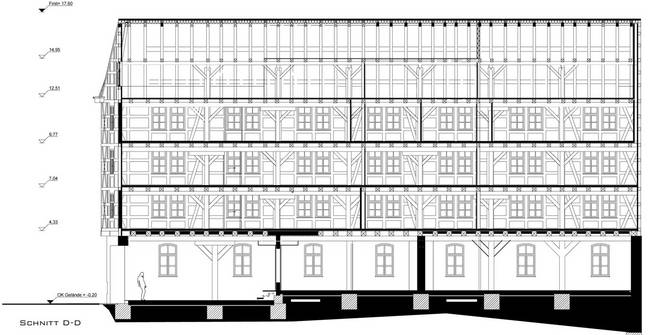
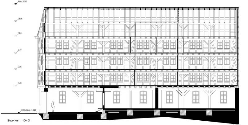
Unmittelbar in der Innenstadt ist das denkmalgeschützte Speichergebäude von ca 1750 direkt am Domplatz gelegen. Das Projekt erhielt 2010 einen Preis beim Fördermittelwettbewerb „städte- und wohnungsbauliche Modellprojekte“. Kurz darauf begann die Planung zur behutsamen Sanierung und dem Umbau des vier-geschossigen Fachwerkbaus. Es entsteht ein Wohnhaus mit sieben freien, barrierearmen Wohnungen und einer Gewerbeeinheit im Erdgeschoss. Die Haupttragstruktur des Gebäudes ist aus Holz und wird in ihrer Grundrisstypologie erhalten. Ebenso die Fassade zur Straßenseite hin. Hofseitig gelegen sind neue Verglasungen vorgesehen, um viel Licht ins Innere zu holen. | Entwurf + Werkplanung + Ausschreibung + Bauleitung | 2012















