"MUT ZUR LÜCKE" Architekturwettbewerb
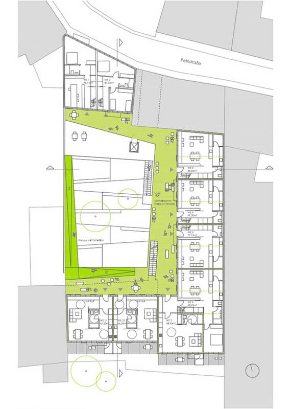
Ziel des Wettbewerbs war es eine Baulücke in der Petristraße 12 in Eisleben durch eine neue Wohnbebauung zu schließen und die geschlossene städtebauliche Kontur wieder herzustellen. Die historisch geprägte Baustruktur der Hinterhöfe wird formal aufgegriffen und inhaltlich neu formuliert. Der Entwurf trägt den Titel "immergrün". Das Hauptmotiv ist dabei der Innenhof als „grüne Lounge“. Mithilfe von Erschließungselementen wird er räumlich inszeniert. Es entstehen attraktive Mehrgenerationenwohnungen, die die Baulücke wie ein „Implantat“ schließen. Subtil integriert sich der Komplex in die vorhandene Bebauung und adaptiert historische Gestaltelemente. Ein regionaler Bezug wird durch die Verwendung von ortstypischen Materialien hergestellt. Neueste Technologien wie Recyclingbeton oder Nanogel als Dämmung für eine teilweise transluzente Nordfassade können angewandt werden. In Bezug auf Energie, Konstruktion, Material und Wohnform zeigt der Entwurf einen nachhaltigen, sozialen Wohnkomplex mit einem Hofbereich. | Anerkennung | Entwurf | 2011




