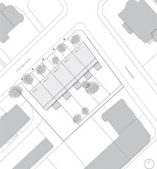
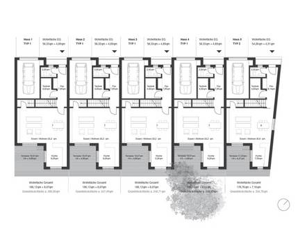
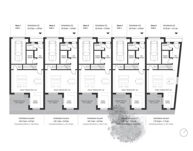
"FÜNF" Stadthäuser - Neubau
Für ein Projekt der Stadtbau Wohnprojekte in Leipzig sind fünf Stadthäuser mit markanter Flachdacharchitektur geplant. Die Neubauten sind dreigeschossig und sehr rational organisiert. In jedem der Gebäude ist eine Garage integriert und ein Balkon und Dachgarten angeschlossen. Über gradlinige Treppen im Wohnungsinneren, werden die Reihenhäuser erschlossen. | Entwurf | 2011






